
Bend Premier Real Estate has taken Commercial Real Estate Marketing to the next level. By utilizing Matterport's 3D scanning & interior mapping capabilities, our in-house videographers are changing the way prospective clients are viewing and experiencing commercial real estate. Our interactive 3D commercial listings put potential buyers or lessees virtually right into your property to explore. They can look around, move from room-to-room, stay as long as they want, return whenever they want, and get a real feel for the space as if they were actually there themselves. And they can do this 24/7 on their computer, mobile device, and most realistically with 3D goggles. Quite simply this is an immersive experience unmatched by traditional photography used by most real estate companies.
"In commercial real estate, often the decision makers cannot be there in person themselves to initially view properties. Our Matterport 3D Tours give prospective buyers and lessees the opportunity to get a real feel for the space without being there in person, and makes sure your property stands out among the rest". - Lynnea Miller, Owner, Bend Premier Real Estate.
Our BPRE in-house videographers were able to capture this 9000 s.f. Habitat for Humanity Restore space that can be viewed from anywhere at anytime. Even with such a challenging space filled with merchandise, our Matterport 3D cameras with 9 infrared lenses really came through. Our videographers took over 100 scans inside this building, which was then stitched together by proprietary software which created both a virtual tour and an exterior "dollhouse view" of the entire commercial space. The benefits of our Matterport 3D Commercial Tours are endless: the space can be viewed 24/7, savings in travel fees to preview the building, ability to go back and view the property again without actually having to be there, and the ability to quickly get the listing in front of the decision makers.

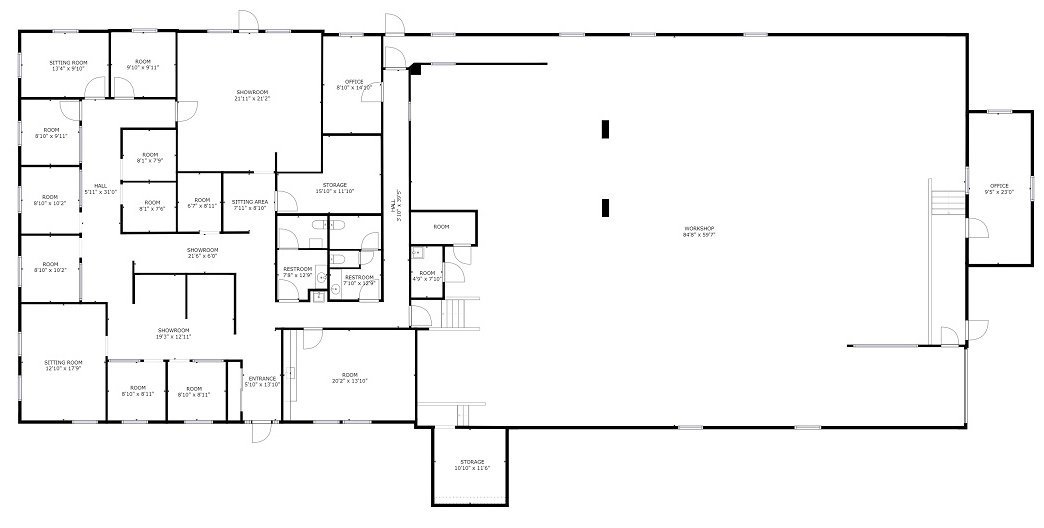
In addition to our Commercial 3D Virtual Tours, our in-house marketing team can quickly and easily create professional black & white floorplans for almost any Matterport space. Despite the definite "wow" factor of our immersive Matterport virtual tour experience, many buyers and lessees are still looking for actual floorplans from which to evaluate a property. Our black & white floorplans are also great for offline use such as flyers and print media. To learn more how our Matterport 3D Tours and Matterport Floorplans can benefit you today, please Contact one of our BPRE Commercial Brokers today.